88 Kitchen Studio
JR大阪駅、阪急梅田、地下鉄中崎町、天神橋筋六丁目などの駅から
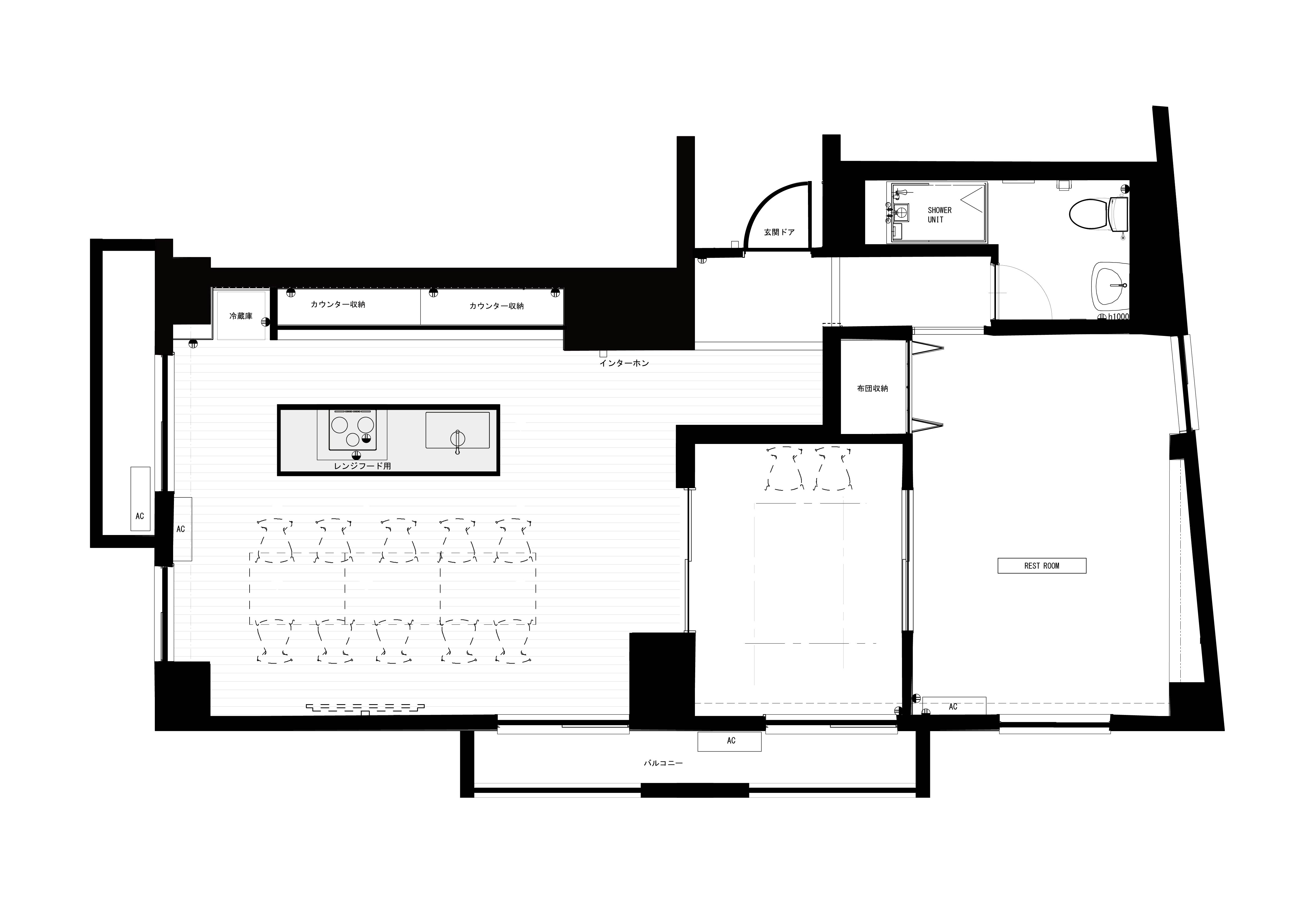
アクセスの良い中崎町・本庄西地域にある80平米を超えるキッチンスタジオです。
アイランドキッチンはガラストップのIHクッキングヒーターを採用し、
モニター越しに男性のコックさんなどが換気扇に被らないよう換気扇の高さを通常よりも高く設置。
テレビの料理番組にも利用していただき、好評をいただいております。
大型バーベキューコンロや料理撮影にも便利な白いプレート(約1㎡)や白いテーブル、
6人掛けのダイニングテーブルに調理器具、オーブンレンジ、食器類も常設。
料理の収録だけでなく、料理教室や食事会にも。シャワールーム、洗面手洗い、
和室8.5畳。東南西の角部屋となっており
最上階で周りは低い建物に囲われているので眺望も良く非常に明るい空間となっております。
一度、お気軽にお声掛けくださいませ。
JR大阪駅、阪急梅田、地下鉄中崎町、天神橋筋六丁目などの駅からアクセスの良い中崎町・本庄西地域にある80平米を超えるキッチンスタジオです。
アイランドキッチンはガラストップのIHクッキングヒーターを採用し、モニター越しに男性のコックさんなどが換気扇に被らないよう換気扇の高さを通常よりも高く設置。
テレビの料理番組にも利用していただき、好評をいただいております。
大型バーベキューコンロや料理撮影にも便利な白いプレート(約1㎡)や白いテーブル、6人掛けのダイニングテーブルに調理器具、オーブンレンジ、食器類も常設。
料理の収録だけでなく、料理教室や食事会にも。シャワールーム、洗面手洗い、和室8.5畳。東南西の角部屋となっており最上階で周りは低い建物に囲われているので眺望も良く非常に明るい空間となっております。
一度、お気軽にお声掛けくださいませ。
PHOTO
キッチン画像1
キッチン画像2
キッチン画像3
キッチン画像4
キッチン画像5
キッチン画像6
キッチン画像7
STUDIO PLAN
PRICE

ご利用金額に関しましてはCONTACTのメールフォームにてお問い合わせください

住所:〒531-0073
大阪府大阪市北区本庄西1丁目6-14